Sistemas de Cubiertas Danpal

Conoce la variedad de diseños proporcionados por Danpal para la elaboración de cubiertas arquitectónicas de alta gama. Utilizamos tecnología innovadora, la cual no solo garantiza control eficiente del consumo de energía, sino que también brinda luminosidad sin igual. Descubre todas tus posibilidades al utilizar nuestras cubiertas traslúcidas. Nos encargamos de fusionar calidad, funcionalidad y diseño.
Creamos soluciones arquitectónicas modernas, las cuales transforman cualquier construcción en un espacio elegante y sustentable. Nuestras cubiertas son una excelente forma de ahorrar energía y comprometerse con el medio ambiente. Utiliza materiales sustentables y modernos en tus proyectos. Nuestros paneles son flexibles y fáciles de instalar, lo que amplía sus opciones creativas. Diseñados para proteger contra los rayos UV y las inclemencias del tiempo, como la lluvia, el viento y el granizo, conservan su integridad estructural incluso con ligeras curvaturas.

Conoce la gama de Cubiertas Danpal

Sistemas de Cubiertas

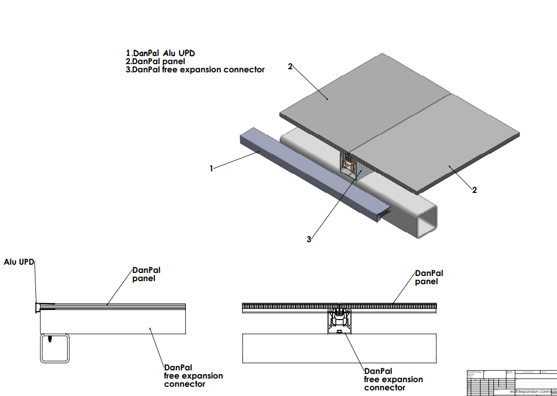
Las cubiertas Danpal son un sistema con paneles aptos para cualquier estructura tanto nueva como existente. Disponible con una variedad de conectores de acristalamiento seco con enclavamiento a presión, fabricados en diferentes materiales dependiendo de las necesidades del proyecto, y ofrece una gran resistencia a impactos y granizo. Contamos con gran variedad de colores, acabados y efectos especiales, proporcionando un gran abanico de opciones creativas para techos transparentes, únicos y funcionales.
Características principales
Tecnología Microcell- para traslucidez y Fuerza.
Los sistemas de cubiertas Danpal están hechos con tecnología Microcell, el último y más avanzado sistema para aplicaciones arquitectónicas de iluminación natural, garantizando capacidad de servicio a largo plazo. El sistema es adecuado para soportar distintas condiciones climáticas y ofrece alta resistencia al impacto.
Luz y apariencia superior.
La estructura única de panel, produce una calidad superior de luz y un aspecto estéticamente agradable. Gracias al uso de materiales de excelente flexibilidad, transparencia y cualidades tonales similares al vidrio, Danpal ofrece el equilibrio perfecto entre luz y temperatura.
Alto aislamiento térmico.
La estructura microcelular única de los paneles proporciona un aislamiento térmico superior, dando como resultado mejoras en los valores “U” y “R” para el aseguramiento de una gran eficiencia energética.
Protección UV extendida
Los paneles Danpalon ofrecen protección UV, que resulta en una mayor durabilidad del sistema.
Alta resistencia al impacto y fuerza
Debido a la estructura microcelular del panel, éste ofrece la más alta resistencia a impactos, las pestañas de doble clipado aseguran la resistencia a fuertes vientos, cargas de nieve y granizo.
Ingeniería y flexibilidad de diseño
La ingeniería y flexibilidad para el diseño del sistema provienen de su considerable gama de conectores.
Sistema tradicional
Conector de policarbonato.
Curvado lateral en frío.
No requiere fabricación.
Aspecto atractivo gracias a los conectores ocultos.

Sistema espaciador de aluminio
Práctico sistema autoportante.
Apariencia más limpia gracias a la reducción de los requisitos de la estructura.
Conexión sencilla a la estructura del edificio.

Sistema espaciador de aluminio
Excelente capacidad de cobertura.
Una mirada clara desde abajo.
Datos técnicos
Sistema Luz en mm para una carga de viento de 100 kg/m2 en un solo tramo
Ancho del panel mm 600 900 1040
Espesor del panel mm 8 10 12 16 22 12 16 22 30 16
Sistema tradicional Conector de policarbonato 600 700 800 900 1000 N/A 900 1150 1660 850
Alu U HD 1900 1550 1400
Alu U 5 3200 2600 2460
Sistema espaciador ALU 1100 1150 1200 1300 950 1100 1000
Sistema BAR freespan Freespan 50 2550 2100 2100 1950
Freespan 60 2900 2900
Freespan 70 3350 3350
Freespan 80 3700 3700 300
Freespan 100 4400 3600 3350
Freespan 150 600 5000 4650
Instalación sin fisuras (o inversa) Conector de expansión 1450 1200 1100
La aleación de aluminio es 6063 T5.
El factor de seguridad es 1,5.
El criterio de deflexión es luz / 50 y no más de 50 mm.
ESPECIFICACIÓN
MC/HC 8mm MC/HC 10mm MC/HC 12mm MC 16 mm MC 22 mm MC 30 mm HC 30 mm
Valor U (W/m²°C) EN ISO 10211, 100772-2 y 6946 3.0 2.6 2.4 1.9 1.5 1.4 1.2
Radio mínimo de curvatura en frío (mm) 2500 2700 2800 3100 3500 4000 4300
Ancho del panel (ej. 600 mm) 600 600 600 / 900 600 / 900 / 1040 600 / 900 1000 1000
Ancho del módulo instalado (ej. 602 mm) 600 600 600 / 900 600 / 900 / 1040 600 / 900 1000 1000
Pendiente mínima desde la horizontal
Absorción acústica Rw dBA 18 dB 20 dB 21 dB 22 dB 13 dB N/A N/A
Folletos

Cubierta Danpavault

El Sistema de franjas de iluminación Danpavault combina todas las ventajas de Danpal en un arco ligero de longitud ilimitada, ofreciendo una fácil integración con diversos tipos de cubiertas, incluyendo láminas de metal y losas concreto armadas. La estructura única de Danpavault transmite una difusión uniforme de luz natural, con una durabilidad superior, aislamiento térmico y protección UV extendida.
El sistema Danpavault puede ser instalado como una cubierta auto-portante o sobre una estructura de metal, cubriendo una amplia gama de radios y distancias entre apoyos. El sistema puede se instalado para vencer pequeñas o grandes luces mediante la adición perfiles de aluminio, tales como separadores o conectores.
Características principales
Longitud ilimitada – Fácil integración con diferentes tipos de techo.
El sistema Danpavault proporciona una cubierta de longitud ilimitada que ofrece una fácil integración con diferentes tipos de cubiertas, incluyendo metálicas perfiladas y de hormigón.
Flexibilidad de instalación – Autoportante y diseño adaptable a cualquier estructura.
Se adapta a las condiciones de luz cambiantes a lo largo del día para un control eficaz de la luz interior, la sombra y la ganancia de calor solar.
Difusión uniforme de luz.
La estructura única de Danpavault permite una difusión uniforme de la luz natural, ofreciendo una durabilidad superior, aislamiento térmico y protección UV extendida.
Tecnología Microcell.
Debido a la corta distancia entre las soportes verticales, Danpalon Microcell ofrece máxima resistencia a golpes y daños causados por granizo. La alta concentración de microcélulas brinda las mejores propiedades mecánicas y de rigidez.
Datos técnicos
Luz máxima para arcos, 610 dp
Radio Carga de nieve Distancia entre soportes (mm)
2.5 60 2000
90 1750
120 1500
3 60 1900
90 1550
120 1350
4 60 1650
90 1400
120 1200
5 60 1500
90 1250
120 1100
6 60 1400
90 1150
120 1000
Luz máxima para arcos, 616 dp
Radio Carga de nieve Distancia entre soportes (mm)
3 60 2700
90 2200
120 1950
4 60 2400
90 1950
120 1700
5 60 2200
90 1950
120 1700
6 60 1950
90 1600
120 1400
Folletos

Cubierta Controlite

Este sistema avanzado permite un control completo de la intensidad de luz interior deseada, en cualquier momento del día y en cualquier época del año.
Este sistema inteligente equilibra los niveles de luz y la ganancia de calor solar para transmitir una luz difusa uniforme, creando ambientes interiores confortables incluso en los climas más extremos. Al gestionar la temperatura interior del edificio de forma natural, se reducen los costes energéticos y se aumenta la comodidad del usuario.
Características principales
Maximiza la luz natural en invierno y bloquea el calor solar en verano.
Ofrece un confort óptimo al controlar la transmisión de la luz natural y la captación de calor solar. Sus paneles permiten instalar paneles de mayor tamaño en edificios comerciales y públicos, optimizando la luz y el calor en cualquier época del año.
Aumenta la comodidad mediante una luz natural “optimizada”.
Se adapta a las condiciones de luz cambiantes a lo largo del día para un control eficaz de la luz interior, la sombra y la ganancia de calor solar.
Reduce el consumo de energía.
Reduce significativamente el uso de energía del aire acondicionado, la calefacción y la iluminación artificial.
Integra el diseño sustentable.
Los paneles se integran en el diseño de edificios energéticamente eficientes, lo que permite a los diseñadores ganar puntos de crédito con sistemas de clasificación de edificios ecológicos.
Datos técnicos
Un sensor externo detecta la dirección del sol y sensores internos registran el nivel de luz dentro del edificio. El sistema inteligente equilibra los niveles de luz, la ganancia de calor y el sombreado para transmitir una luz filtrada adecuadamente, garantizando un ambiente interior confortable. Ofrece un coeficiente de sombreado variable al cambiar sus propiedades de transmisión solar para brindar a los arquitectos y diseñadores una flexibilidad ilimitada en el diseño de soluciones de iluminación natural.
Producto Cubierta Controlite Laboratorio / empresa Estándar de prueba
Módulo de montaje (mm) 1050
Paso mínimo
Peso con bastidor (kg/m²) 14.5
Valor U (W/m²K) 1.0 (apertura), 0.9 (cierre) CSTB Edición Th-U 2007
Aislamiento acústico 27 dBA CFI Andersay ISO140-4
Clasificación de incendios B-s1, d0 LNE EN 13501-1:2002
Impacto M50/1200 J Aprobar SOCOTEC-Francia
Controlite + DP 16 transparente Danpal NORMA ASHRAE 74-1988
Transmisión de luz 37% (apertura), 5% (cierre)
SHGC 0,40 (apertura), 0,18 (cierre)
Transmisión de luz 25% (apertura), 5% (cierre)
SHGC 0,35 (apertura), 0,17 (cierre)
Luz libre entre apoyos (para carga de 100 kg/m², 2 apoyos, SF1,5) 4.8 m
Longitud máxima del panel 11,98 m
10 años de garantía
Folletos

Cubierta Everbright

El sistema ofrece un rendimiento superior frente al fuego y un excelente aislamiento térmico, además de una protección UV total. Everbright se puede ensamblar fácilmente como un sistema de acristalamiento en seco, lo que reduce considerablemente los tiempos de construcción en obra.
Puede abarcar libremente hasta 12 metros en aplicaciones curvas y 4,38 metros en aplicaciones a un agua sin necesidad de estructura intermedia. Los paneles de 74 mm de profundidad proporcionan una luz suave y difusa de forma natural, al tiempo que ofrecen cierto grado de transparencia.
Características principales
Aspecto limpio, luces superiores.
El sistema de techo Everbright® puede cubrir luces de más de 4 metros en condiciones típicas australianas sin necesidad de entramado intermedio. Los paneles Everbright®, de 74 mm de espesor, pueden alcanzar hasta metros de longitud, eliminando a menudo la necesidad de juntas escalonadas. Fabricados fuera de la obra en condiciones de fábrica, se elimina el riesgo de acumulación de polvo y humedad. Los paneles se ensamblan fácilmente como un sistema de acristalamiento en seco y su instalación es sencilla gracias a los paneles prefabricados, lo que minimiza el tiempo de obra.
Diseño visual vanguardista.
Los paneles Everbright® son de celdas abiertas translúcidas de 74 mm de espesor que se entrelazan de forma especial, permitiendo a arquitectos y diseñadores lograr uniones imperceptibles sin comprometer la integridad estructural. Su exclusivo perfil en forma de cúpula facilita la autolimpieza y no requiere entramado intermedio visible. Con un acabado uniforme en ambas caras y una luz suave y difusa natural, Everbright® ofrece un excelente aislamiento térmico (bajos valores U) y la opción de añadir acabados que mejoran el aislamiento y el rendimiento climático.
Sostenibilidad ambiental.
Los paneles autoportantes Everbright® requieren mínimos soportes y fijaciones adicionales, y se fabrican a medida para evitar desperdicios. Sus propiedades aislantes protegen inherentemente a los usuarios de los dañinos rayos UV, y reducen la necesidad de iluminación, calefacción y refrigeración artificiales, lo que contribuye a una mejor calificación energética del edificio.
Datos técnicos
Folletos

Cubierta compacta de 4 mm

El sistema ofrece un rendimiento superior frente al fuego y un excelente aislamiento térmico, además de una protección UV total. Everbright se puede ensamblar fácilmente como un sistema de acristalamiento en seco, lo que reduce considerablemente los tiempos de construcción en obra.
Puede abarcar libremente hasta 12 metros en aplicaciones curvas y 4,38 metros en aplicaciones a un agua sin necesidad de estructura intermedia. Los paneles de 74 mm de profundidad proporcionan una luz suave y difusa de forma natural, al tiempo que ofrecen cierto grado de transparencia.
Características principales
El panel.
Danpal compacto, de 4 mm de espesor y apariencia similar al vidrio, ofrece resistencia, propiedades aislantes, flexibilidad, capacidad de curvatura, bajo peso y protección UV.
Conexión de junta alzada: sin selladores ni adhesivos.
El sistema de conexión de junta alzada Danpal significa que todo el ensamblaje no utiliza selladores ni adhesivos, eliminando las dificultades de falla de unión comunes en los sistemas tradicionales.
Libertad para diseñar espectaculares superficies acristaladas: en cualquier tamaño o ángulo.
Los conectores de aluminio o polímero ofrecen a los arquitectos una gran libertad en el diseño exterior de edificios. Se suministran paneles de hasta 12 m de longitud, disponibles en versiones rectas, curvadas en frío o termoformadas para crear curvas cerradas.
Disponible en todas las gamas de colores.
Danpal compacto está disponible en todas las gamas de colores, adaptándose fácilmente a todas las ideas creativas de transparencia.
El sistema Danpal compacto consta de:
Paneles compactos principales transparentes de 4 mm, 592 mm de ancho, extruidos con una junta vertical en ambos lados del panel.
Un conector a presión (de aluminio o policarbonato transparente) que une los paneles. Perfil espaciador de policarbonato transparente. Su ancho de módulo instalado es de 600 mm. El sistema es flotante. Cada componente puede expandirse o contraerse térmicamente a su propio ritmo, manteniendo las propiedades estructurales durante toda la vida útil del material.
Datos técnicos
Compact
Structure Compact (SOLID)
Thickness (mm) Traditional and Free span systems: 600 Alu spacer systems 605
Length* Standard up to 12 m
Fire resistance 2** B-s1, d0
Ug (W/m².K) (according to Th – U rules) 5.2
Slope (connector installed to the external) Roofing: 5° (or 9%) / Shed: 30° (or 58%)
Minimum radius for cold curving (m) 3.2
Non – fragility Roofing: 1200 J – Class B
Stability in seismic zone On request
Digital printing Can be applied under specific conditions, please contact us for further details
ISO certifications Manufacturer certified ISO 9001 & ISO 14001
Warranty 10 years manufacturer warranty
*Can be longer upon request.
**Euroclass following SBI (Single Burning Item) tests protocol established according to EN 13501-1.
Folletos

Cubierta Danpatherm RK7

Un sistema de cubierta de doble acristalamiento, construido a partir de casetes prefabricados y conectado mediante el sistema de unión de juntas verticales de eficacia probada de Danpal.
Los casetes incorporan puntales de acristalamiento ocultos que proporcionan una alta resistencia tanto al viento como a la nieve.
Características principales
Crea un ambiente de calma interior con una luz suave y difusa.
El doble acristalamiento Danpatherm incorpora Softlite, un acabado especial integrado en los paneles que elimina el deslumbramiento y garantiza una transmisión uniforme de la luz. Con Softlite, los interiores se iluminan de forma homogénea con una luz suave y difusa. Softlite es uno de los muchos acabados que ofrece Danpal.
Excelente aislamiento térmico, trasmisión de luz y resistencia a cargas.
Danpatherm RK7, el exclusivo sistema de cubierta de doble acristalamiento, redefine los límites de lo posible en el mundo de las cubiertas. Diseñado para crear el ambiente ideal con una perfecta combinación de luz, sombra y acústica, este nuevo sistema de cubierta ofrece una transmisión de luz, un rendimiento térmico y un aislamiento acústico excepcionales, además de una gran capacidad de cobertura.
El sistema.
Danpatherm RK7 ofrece una versatilidad total para entornos adaptables. Su naturaleza dinámica permite diseñar sistemas de iluminación natural con mayor apertura, sin el riesgo de sobreiluminación o sobrecalentamiento. Los paneles interiores y exteriores están disponibles en una variedad de colores de acristalamiento, ampliando las posibilidades creativas.
Instalación limpia y rápida.
Este exclusivo sistema constructivo, premontado en fábrica, se instala de forma rápida y sencilla, reduciendo los costes laborales y el tiempo de instalación. Los paneles exteriores se pueden retirar si es necesario sin afectar a la estructura del edificio. Fabricado fuera de la obra, este sistema de paneles modulares evita que la humedad y la suciedad penetren entre los paneles.
Resistencia inigualable al viento y a las cargas.
Construida con casetes y unida mediante el reconocido sistema de juntas verticales de Danpal, la estructura Danpatherm RK7 incorpora columnas de acristalamiento ocultas que ofrecen una alta resistencia a las cargas de viento y nieve.
La Danpatherm RK7 puede cubrir más de 3 metros sin soportes, lo que reduce significativamente la necesidad de una estructura secundaria de acero.
Datos técnicos
Sin aislamiento Con aislamiento
Estructura de casete 12 + 46 + 12
Módulo (mm) 600
Espesor (mm) 70
Longitud Estándar hasta 11,8 metros
Peso (kg/m²) sin marco 8 8.3
Reacción al fuego según la norma EN 13501-5 Broof (t1)
Acústica Rw (c, ct) 26 (-1, -5)
Valor U (W/m²K) 1.18 0.79
Transmisión de luz Hasta un 35% Hasta un 19%
SHGC 0.4 0.3
Carga máxima de viento. Luz de 2000 mm. 3 soportes. 170 kg/m² SF2
Carga máxima de viento. Luz: 2500 mm. 3 soportes. 155 kg/m² SF2
Carga máxima de viento. Luz: 2500 mm. 2 soportes. 275 kg/m² SF2
resistencia a impactos y golpes Ensayo de impacto suave M50-1200 julios
Acabados Softlite, HP, Low E
Garantía 10 años
Folletos
Atención vía WhatsApp